






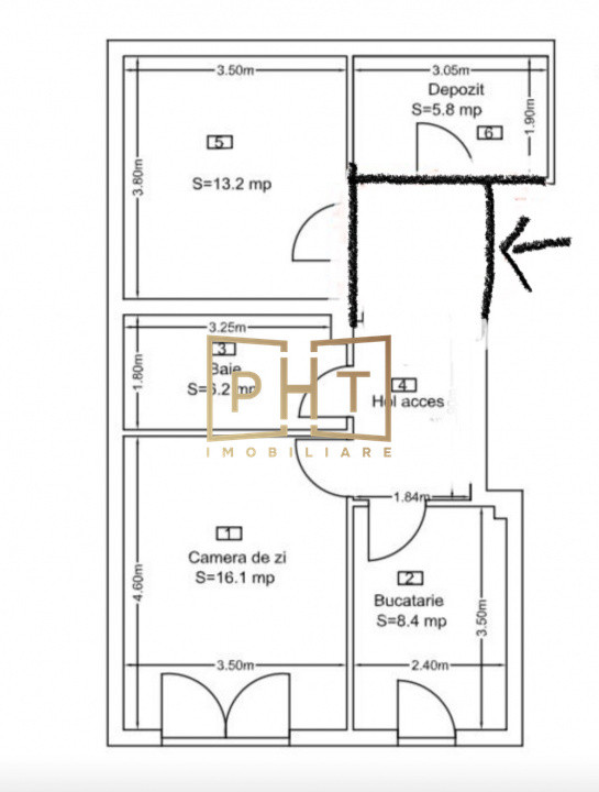
Va propunem spre vanzare un apartament cu 2 camere decomandate, situat in zona Porii, Floresti. Locuinta are 60 mp utili si este recent renovata. Compartimentare functionala: hol, living, bucatarie, dormitor, dressing (camera separata, suficient de mare pentru a fi folosita ca birou sau camera pentru musafiri), baie. Apartamentul este luminos, cu orientare favorabila si lumina naturala pe tot parcursul zilei. Dotat cu becuri si intrerupatoare smart, controlabile direct de pe telefon. Se afla la etajul 2 intr-un imobil cu regim de inaltime P+3+Pod. Pentru confortul dvs se achizitioneaza separat un loc de parcare la pretul de 4.000 euro. Pentru detalii sau programarea unei vizionari, va stam la dispozitie. ID: P198802